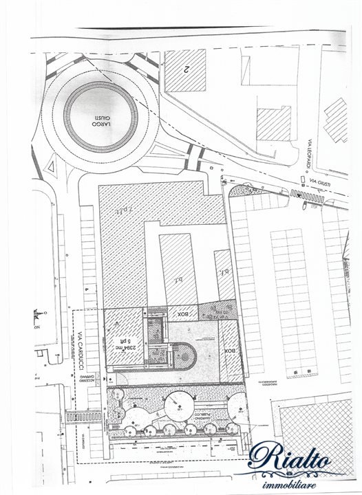
Terreni in vendita via carducci 11, Nichelino, località ferrovia

Piemonte Torino Nichelino ferrovia via carducci 11

Prezzo

€ 480.000

carducci nichelino
Rif.: 330

  • Vendita
  • Contratto
  • Intera proprietà
  • Tipo di Proprietà
  • 1000 m²
  • Superficie
  • 800 m²
  • Area Edificabile
  • 25 mt.
  • Altezza Massima Edificabile
  • N.C.
  • Classe Energetica
  • Piemonte
  • Regione
  • Torino
  • Provincia
  • Nichelino
  • Comune
  • ferrovia
  • Località

Lotto di terreno in ottima posizione fronte scuola con due supermercati a 50 mt.Il progetto è in attesa di definizione di PEC(un unico partecipante) per la costruzione di n° 5 piani f.t. e n° 11 alloggi composti da soggiorno,due camere,cucina,due bagni,due balconi per circa 90 mq. e box.(mq. 800 di SLP).Il PEC dovrebbe essere approvato entro settembre 2026.

Caratteristiche

Immobile Libero: Si
Immobile a Reddito: No
Dislivello Terreno: Leggero
Accesso in Strada: In strada asfaltata
Allaccio Acqua: Si
Allaccio Elettricità: Si
Allaccio Gas: Si
Allaccio Fogne: Si
Illuminazione Pubblica: Si
Proprietà Recintata: No
 
progetto nuova costruzione
Qualificazione Urbanistica: Unità Multiple

Planimetrie

carducci nichelino - 1
carducci nichelino - 2

Mappa

Invia la tua ricerca all'agenzia

Descrivi l'immobile che cerchi e invia la ricerca all'agenzia.

Proponi il Tuo Immobile

Proponi il tuo immobile alla nostra agenzia.

Newsletter Immobiliare

Ricevi le nostre proposte immobiliari direttamente nella tua email!